DESPRE NOI
Suntem un atelier de arhitectură și design din Iași. Oferim servicii complete de proiectare: arhitectură, design interior, structură, instalații, urmărire de șantier și consultanță tehnică. Considerăm că arhitectura și designul de calitate nu se bazează doar pe construirea unei clădiri. Concepem proiectele pornind de la aspirațiile, necesitățile și dorințele clientului, căutam cele mai bune soluții și respectăm frontul construit existent. Răspundem eficient de materializarea investiției în termenele prevăzute. Credem că cele mai reușite și de success investiții au fost precedate de acele colaborări între architect și clientul său, caracterizate de un climat de încredere reciprocă și bunăvoință. O asemenea atmosferă nu poate fi generată decât de stabilirea clară și informarea reciprocă a sarcinilor, obligațiilor și responsabilităților, în vederea protejării intereselor fiecăruia.
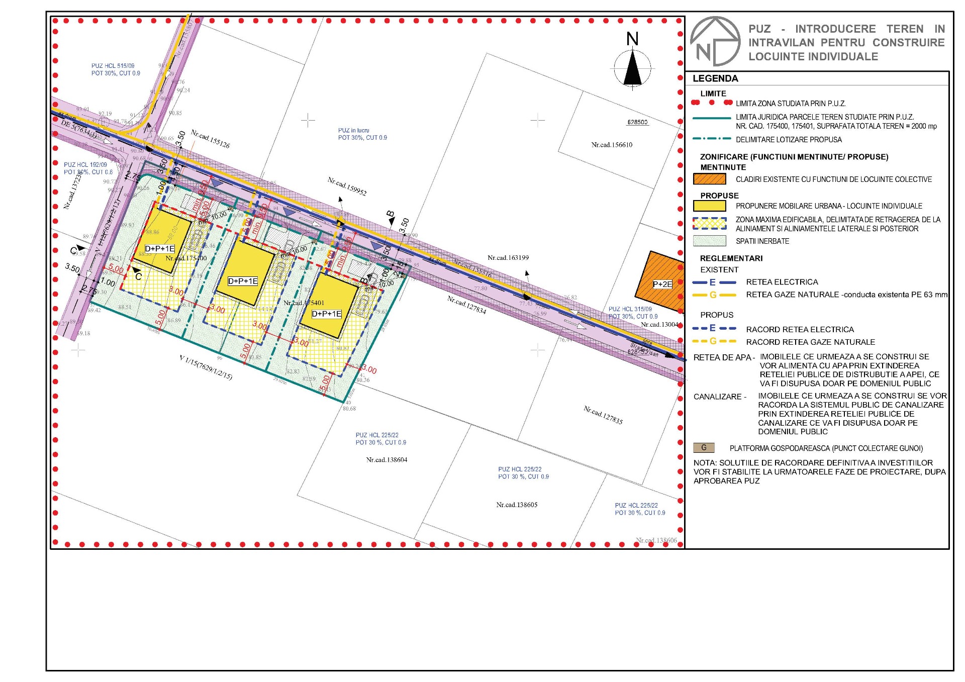
Folosind o schemă funcțională eficinetă, obținem planuri simple și compacte, care utilizează la maxim fiecare metru pătrat. Ne detaliem proiectele în imagini 3D cu precizie și atenție la amănunte, raportându-ne permanent la contextul existent. Fiecare proiect este o oportunitate de a transforma viziunea dumneavoastră într-o realitate palpabilă, printr-o abordare personalizată și atenție la detalii.

Arh. A. Daniela Scripcariu
Absolventă a Facultății de Arhitectură "G.M. Cantacuzino" din cadrul Universității Tehnice "Gheorghe Asachi" din Iași, promoția 2016.
Membru al Ordinului Arhitecților din România din anul 2017, arhitect cu drept de semnătură.
Dețin o experiență de peste 8 ani în proiectarea clădirilor civile, industriale și agrozootehnice, precum și în domeniul urbanismului.
Începând cu anul 2020, în calitate de cofondator al Atelier Iconic, coordonez activitatea generală a societății, asigurând respectarea standardelor de calitate și integrarea viziunii fiecărui client în toate proiectele dezvoltate.
Proiectele noastre

















